Kitchen Fitting Services
Upgrading your kitchen is a significant investment in your home. As well as choosing the right kitchen for you, it is important to have it fitted professionally and to a high standard to ensure your investment adds real beauty and value to your home.
With 27 years of experience and many satisfied customers at Concept Fitting Services Ltd. I specialize in the installation of kitchens and bedrooms and I can design your new kitchen layout for you if you wish. I provide the complete PROJECT MANAGEMENT service for all of the installation work associated with your project, whether it is a straight forward kitchen replacement, a new extension or a more substantial project involving the restyling of the room(s) or the removal of walls etc.
I am a fully certified kitchen fitter for Wren Kitchens in East Yorkshire. I cover the whole of the Hull postcode and surrounding area. For complete peace of mind, all of my work is fully guaranteed and all of the trades I use are fully certified by the appropriate bodies (for example; Part P or GasSafe). I am also CRB checked.
Laminate Flooring Installation Service
I also offer a complete laminate flooring installation service for any room in your home.

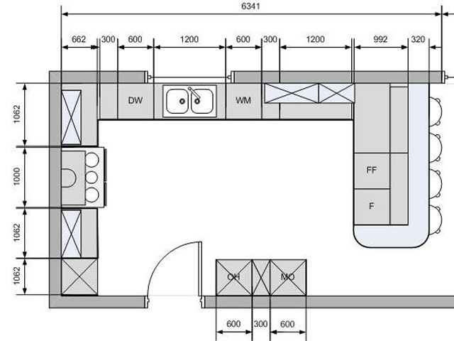
Your project starts with detailed measurements of the room and a 2 Dimensional layout of the kitchen design. This ensure that all chosen unit will fit into the space available.

A computer modelling system is used to create a 3 Dimensional visualisation of what the kitchen layout with your chosen units and appliances will look like. This can be viewed from all angles so that you get the complete feel for the eventual outcome. It can even include your choice of tiling and decor.

Only skilled and accredited trades are used throughout the installation which including plastering, plumbing, building and electrical services.

The final result ready for you to enjoy for years to come. You just need to add your own finishing touches!